Un’opera che il territorio attendeva da nove lunghi anni
“Una Piazza per Aranova! Aperto il cantiere che realizzerà forse la più attesa tra le opere pubbliche di Aranova degli ultimi 40 anni: la piazza! È stato un impegno fondamentale preso con i cittadini e siamo orgogliosi di annunciare insieme al capogruppo Stefano Calcaterra che a breve ci sarà l’inaugurazione con posa della prima pietra!” Ad annunciarlo è Alessandra Vona, Consigliera comunale del Partito Democratico di Fiumicino.
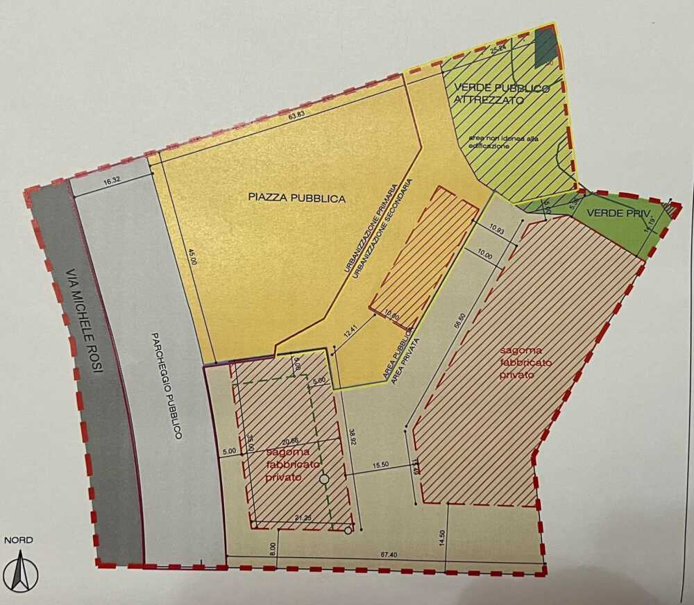
Le fa eco anche Roberto Severini, Consigliere di opposizione alla giunta Montino estremamente attivo nel territorio di Aranova, che commenta: “Finalmente, dopo 9 anni di attesa e di richieste, iniziano i lavori della futura #Piazza con annesso comprensorio residenziale e commerciale di Aranova in via Michele Rosi Questo il progetto presentato dagli imprenditori locali che daranno vita all’intervento. Come consigliere comunale della località, sarò attento controllore nel rispetto della convenzione sottoscritta”.

